圓錐破碎機漏油的常見原因分析及解決辦法
圓錐破碎機漏油的常見原因:1、密封裝置失效;2、回油管道堵塞;3、碗形瓦回油孔太小;4、工作壓力不當;5、部件間隙不合理。圓錐破漏油策略:1、設備密封良好;2、生產中的定期檢查;3、禁止潤滑油溫度升高;詳細解答
詳細解答
在圓錐破碎機的維護保養中,潤滑是一項主要的工作內容,也是設備正常運轉的要條件,然而圓錐破運行過程中免不了出現漏油現象,從而影響影響破碎的效率,設備的使用壽命,增加用戶的生產成本。下面小編帶大家來了解下圓錐破碎機常見的漏油原因及策略。

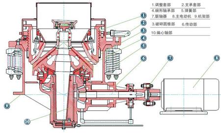
圓錐破碎機漏油的常見原因
1、密封裝置失效
在生產中要注意檢查傳動軸架與主機架之間的O形密封圈、集油器與甩油環之間的尼龍密封環、甩油環與傳動軸之間的O形密封環的磨損情況,因為這些零件在使用后,將受到磨損變形,失去密封所需的彈性,密封裝置失效,便會導致設備漏油的問題。
2、回油管道堵塞
漏油的原因還可能是油不能從設備內迅速排出,尤其是油溫低時更是如此,因此在生產中應注意檢查主排油軟管或管道內是否積有贓物,檢查傳動軸下面的傳動軸架長孔內是否有贓物,否則贓物積聚將阻礙油的流動,從而導致圓錐破碎機漏油。
3、碗形瓦回油孔太小
如果圓錐破碎機的碗形瓦回油孔太小,潤滑油部分會漏掉,回油量小,不能大小傘齒輪良好潤滑。這種情況要適當增大碗形瓦回油孔,回油量,從根本上解決圓錐破碎機碗形瓦漏油及傘齒輪潤滑不良的問題。
4、工作壓力不當
潤滑油從進油管進入主軸下部經潤滑摩擦盤摩擦,若圓錐破碎機潤滑系統的工作壓力不當,將會使油從軸隙中噴出,造成潤滑油沿密封筒外圓向下泄露。
5、部件間隙不合理
若主機座油池內壁與配重體擋油圈板之間間隙過小,那么在圓錐破碎機的工作過程中,甩到它們之間的潤滑油在張力的作用下易形成油封。油封在氣壓的推動下,會沿主機座內壁連續不斷地從防塵圈溢出。
圓錐破碎機漏油的策略

1、設備密封良好
(1)密封結構設計的好壞,關系到密封的效果和密封圈的壽命,O形密封圈的密封效果取決于安裝槽尺寸的正確性。密封圈安裝槽過深,密封圈的壓縮量不夠,起不到密封作用,因此應合理設計和加工密封結構,以密封裝置的密封性良好。
(2)正確安裝密封圈,設備密封良好。不要用帶棱角的工具安裝密封圈,以防止劃傷密封圈,避免將其拉伸到變形的位置。可適當給密封圈涂抹潤滑油,以便安裝。
2、生產中的檢查
(1)定期檢查過濾器是否堵塞或損壞,更換已經扭結的排油管路,回油管路的通暢。同時應注意清洗圓錐破碎機傳動軸架側面的通風罩,用壓縮空氣吹掃傳動軸架上接通風罩的長芯孔。
(2)檢查主機座油池內壁與配重體上擋油圈之間的間隙是否合理,防止濺到彼此間的潤滑油形成油封,從而導致圓錐破碎機漏油。
3、禁止潤滑油溫度升高
潤滑油溫度升高容易使油液的黏度,密封元件加快老化,從而引起嚴重漏油。因此我們應禁止潤滑油溫升高,可通過增加油箱的散熱面積,以提高油箱的散熱效果,要時可增添冷卻器以潤滑油溫。

















